Zugangsweg- und Meldebereichsebenen über Abdeckungsbereiche
Die Feuerwehrkarten müssen Zugangswege zu dem Ort enthalten, an dem ein Brand gemeldet wurde, der bekämpft werden muss. Sie können dedizierte Ebenen in Ihrer Grafik konfigurieren, um in den Feuerwehrkarten den richtigen Zugangsweg zu jedem Brandmeldeobjekt darzustellen. Diese Ebenen können hilfreiche grafische und textuelle Elemente enthalten, die Sie als nicht sichtbar konfigurieren können, damit sie nur in der Erweiterung Feuerwehrkarten angezeigt werden.
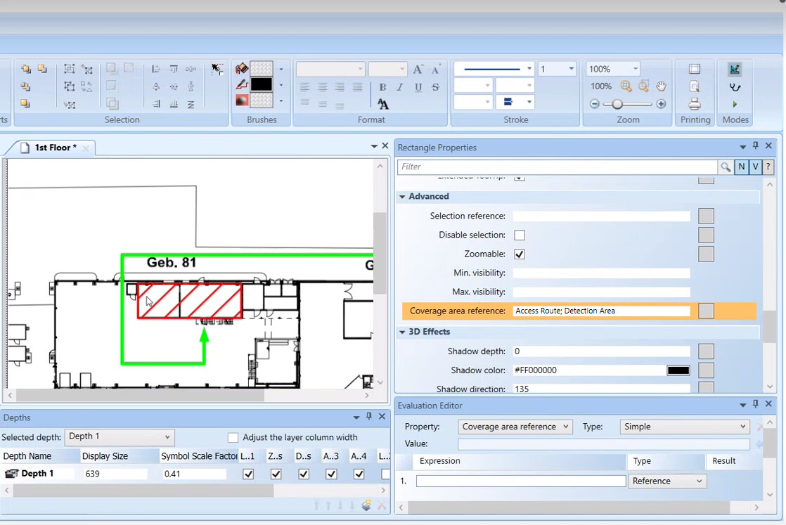
Die einzelnen Zugangswegebenen können Sie dann den entsprechenden Brandmeldeobjekten zuordnen, indem Sie ein Rechteck um die Objektsymbole erstellen und dann die Beschreibung der Ebene in die Eigenschaft Auswahlreferenz des Rechteck-Elements eingeben. Die Begrenzungsrechtecke können als nicht sichtbar eingestellt und auf einer beliebigen Ebene konfiguriert werden. Normalerweise ist dies die Zugangswegebene.
Die resultierenden Feuerwehrkarten enthalten die Zugangswegebene, die dem Objekt der jeweiligen Karte entspricht, nicht aber die Zugangswegebene anderer Objekte oder die Begrenzungsrechtecke.

Auf die gleiche Weise wie beim Zugangsweg können Sie das Brandobjekt mit einer Ebene verknüpfen, die den Meldebereich kennzeichnet. Fügen Sie in der Eigenschaft Referenz Abdeckungsbereich des Rechteckelements mehrere Elemente getrennt durch ein Semikolon ein (z. B. Zugangsweg; Meldebereich).
